loading
loading
  • Видеонаблюдение
  • Системы контроля и управления доступом
  • Пожарная защита
  • Сетевое оборудование
  • Услуги
  • Программное обеспечение
  • Охранная сигнализация
  • Камеры
  • Видеорегистраторы
  • Коммутаторы
  • Мониторы
  • Программное обеспечение
  • Аксессуары
  • Объективы
  • Джойстики
  • Оборудование
  • Назад
  • Контроллеры
  • Считыватели
  • Домофоны
  • Алкотестеры
  • Аксессуары
  • Программное обеспечение
  • Комплектующие
  • Назад
  • Оповещение
  • Назад
  • Громкоговорители
  • Назад
  • Коммутаторы
  • PoE-оборудование
  • Оборудование Wi Fi
  • Трансиверы (SFP-модули)
  • Медиаконвертеры
  • Назад
  • Для сайта
  • Сервисы для бизнеса
  • Назад
  • CRM
  • Системы безопасности
  • Управление сайтом
  • Антивирусные программы
  • Операционные системы
  • Переводчики / Словари
  • ПО для дома и офиса
  • Прикладные
  • Системные
  • Утилиты
  • Назад
  • Видеонаблюдение
  • Системы контроля и управления доступом
  • Назад

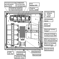
LTV-BOX-00-250, термошкаф

Арт. LTV-BOX-00-250
Код 00-00004069

Термошкафы, -,  интерфейс передачи данных -, рабочая температура -40...+50°C °C, мощность  300Вт, электропитание AC220V

LTV-BOX-00-250, термошкаф
Арт. LTV-BOX-00-250
Код 00-00004069